Original ADO®-Sonnenschutz
starrer Sonnenschutz als vertikale und horizontal auskragende Verschattungslösungen
Wir fertigen Sonnenschutzlösungen für unterschiedliche starre Verschattungsmodelle. Dabei stehen sowohl vertikale als auch horizontal auskragende Systeme mit vielen verschiedenen Lamellenausführungen zur Auswahl. Projektbezogene Konstruktionen setzen wir flexibel und wirtschaftlich um. Anwendungsbereiche unserer Sonnenschutzkonstruktionen sind Verwaltungsgebäude, Konferenzzentren, Veranstaltungsräume, Privathäuser, Einkaufszentren und öffentliche Einrichtungen wie Krankenhäuser, Kitas und Schulen. Sie bieten Lösungen als:
✓ Verschattung, ✓ Blendschutz, ✓ Sichtschutz, ✓ Verkleidungen
und in vielen weiteren Bereichen

|
Referenz: Privathaus - SB |

|
Referenz: REWE, Amshove - SB-EL |
Unsere verschiedenen Konstruktionen sind wartungsfrei, robust, langlebig und windsicher. Sie lassen dem Planer Raum in der optischen Gestaltung und überzeugen durch hohe Qualität und extreme Variabilität:
|
Materialien:
Ausführungen:
|
Unsere spezielle Original ADO®-Lamellen-Halterung nimmt die wärmebedingten Spannungen geräuschlos auf.
Zu unserem Produktsortiment zählen auch Original ADO®-Sonnenschutzanlagen / Großlamellensysteme, die aus elliptischen Hohlprofilen komplett aus Aluminium und komplett beschichtet hergestellt werden. Wir bieten zahlreiche Varianten.
Übersicht unserer verschiedenen Bauarten:
|
Profil
|
Bauart | Ausführungen | Eigenschaften | zu den Bauarten | |||||||
|
Original ADO®-Sonnenschutz
Verschattungmodelle - mit Lamellen aus Aluminium-Standard-Flachprofilen 40 x 3 mm bis 120 x 3 mm - mit Querverbindung aus Alu-Rundrohr ∅ 10 mm verschweißt
|
|
|
|||||||||
|
Original ADO®-Sonnenschutz
Verschattungsmodelle - mit Lamellen aus elliptischen, stranggepressten Aluminium-Hohlprofilen - standardmäßig:
und alternativ auch aus Aluminium-Rechteck-Hohlprofilen
|
|
|
|||||||||
|
Original ADO®-Sonnenschutz
Verschattungsmodelle - mit Lamellen aus S-förmigen, stranggepressten Aluminium-Sonderprofilen 90 x 100 mm unter 45 ° - mit Querverbindung aus Alu-Rundrohr ∅ 10 x 2,5 mm und Alu-Rundrohr ∅ 16 x 2,5 mm im Original ADO®-Schraubsystem verschraubt
|
|
|
|||||||||
|
Original ADO®-Sonnenschutz
Verschattungsmodelle - mit Lamellen aus Aluminium-Standard-Flachprofilen 40 x 3 mm bis 120 x 3 mm - mit Querverbindung aus Alu-Rundrohr ∅ 10 x 2,5 mm und ∅ 16 x 2,5 mm im Original ADO®-Schraubsystem verschraubt
|
|
|
|||||||||
|
Original ADO®-Sonnenschutz
Verschattungsmodelle - mit Lamellen aus Aluminium-Standard-Flachprofilen 40 x 3 mm bis 120 x 3 mm - mit Querverbindung aus Alu-Rundrohr ∅ 10 mm verschweißt
|
||
|
Ausführung:
Lamellenabstand:
|
Eigenschaften:
|
|
| ⇒ zur Produktseite SB | ||
|
Original ADO®-Sonnenschutz
Verschattungsmodelle - mit Lamellen aus elliptischen, stranggepressten Aluminium-Hohlprofilen - standardmäßig:
und alternativ auch aus Aluminium-Rechteckhohlprofilen
|
||
|
Ausführung:
|
Eigenschaften:
|
|
| ⇒ zur Produktseite SB-EL-H/SB-EL-V | ||
|
Original ADO®-Sonnenschutz
Verschattungsmodelle - mit Lamellen aus S-förmigen, stranggepressten Aluminium-Sonderprofilen 90 x 100 mm unter 45 ° - mit Querverbindung aus Aluminium-Rundrohr ∅ 10 x 2,5 mm und ∅ 16 x 2,5 mm im Original ADO®-Schraubsystem verschraubt
|
||
|
Ausführunge:
Lamellenabstand:
|
Eigenschaften:
|
|
| ⇒ zur Produktseite SB-S | ||
|
Original ADO®-Sonnenschutz
Verschattungsmodelle - mit Lamellen aus Aluminium-Standard-Flachprofilen 40 x 3 mm bis 120 x 3 mm - Querverbindung aus Aluminiu-Rundrohr ∅ 10 x 2,5 mm und ∅ 16 x 2,5 mm im Original ADO®-Schraubsystem verschraubt
|
||
|
Ausführungen:
Lamellenabstand:
|
Eigenschaften:
|
|
| ⇒ zur Produktseite SB-L | ||
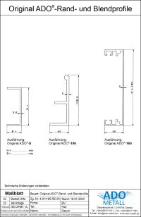
Original ADO®-Rand- und Blend-Profile

Es stehen drei Ausführungen zur Auswahl:
|
Original ADO®-Kragarmlösungen
Wir führen verschiedene Kragarmlösungen im Sortiment. Die Montage kann je nach Ausführung auf, zwischen oder unter den Kragarmen erfolgen:

|
Kragarmausführungen: |
|
| Kragarm für Gehrungsecken | |
|
|
kurzer Kragarm aus Aluminium oder Stahl - verschweißt oder verschraubt - Montage: → zwischen den Kragarmen |
|
|
Kragarm aus Aluminium - Montage: → unterhalb des Kragarmes |
|
|
gevouteter, verschweißter Blechträger aus Alumium oder Stahl - Montage: → auf dem Kragarm aufliegend |
| Kragarm aus Stahl-T-Walzprofil, an Kopfplatte verschweißt mit Oberfläche stahlverzinkt oder stahlverzinkt und pulverbeschichetet - Montage: → unterhalb des Kragarmes | |








